Centre Pyrénéen d’Education Nature à Buzy (64)

APD en cours

Maître d’Ouvrage: Association Education Environnement 64

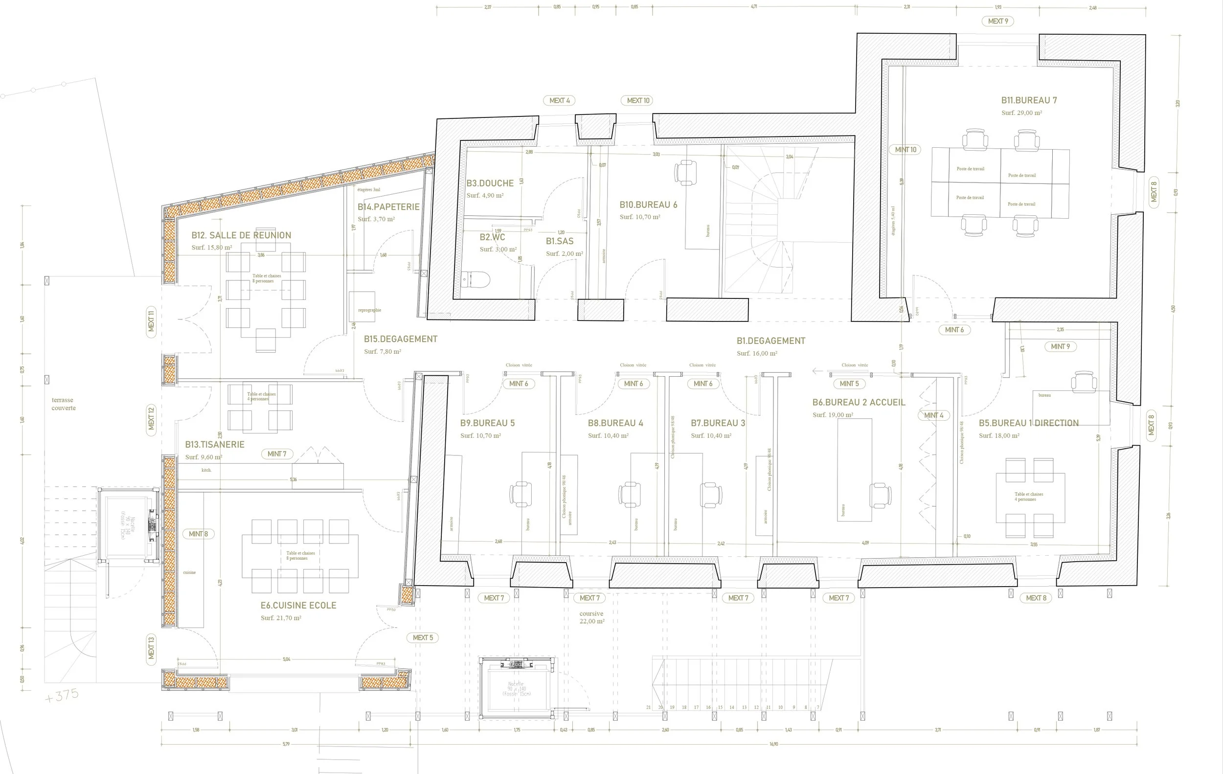
Programme: 481 m² de surface utiles

Budget: 1 226 000 € HT

Equipe : Jean-Louis Dumoulein architecte mandataire, Pays, Paysages, paysagistes, Idbat BET Structure, Bénédicte Martin BET thermique et environnement, Ingétudes BET Fluides

L’association Education Environnement 64 a fait l’acquisition d’une maison de village à Buzy pour en faire un outil de travail complet. Le programme est multiple, et comprend :

  • Un centre de formation et de documentation

  • Un club nature pour les enfants

  • Les bureaux de l’association (10 salariés)

  • Des gîtes pour 12 personnes en formation

  • Une cuisine collective / école de cuisine

    L’association souhaite s’inscrire dans une démarche exemplaire et nous a demandé de les accompagner dans la définition d’un projet à haute valeur environnementale.

Précédent
Précédent

Réhabilitation d'une ancienne métairie en bio-sourcé à Salies de Béarn

Suivant
Suivant

Maison ossature bois à Loubieng